Apie projektą

Gyvenu Aleksote – tai Jūsų namai, kur kiekviena diena prasideda su šviesa, ramybe ir tikru gyvenimo jausmu. Įsivaizduokite erdvę, sukurtą pagal jūsų poreikius – čia ne tik gyvensite, bet ir kursite svarbiausias akimirkas, kurios taps brangiausiais prisiminimais. Tai daugiau nei būstas – tai jūsų asmeninė gyvenimo kokybė.

Sklypo planas

„Gyvenu Aleksote“ – uždaras, tik 10 namų kvartalas su erdviais 7–8 arų sklypais, suteikiančiais privatumą ir laisvę jūsų gyvenimui. Patogus privažiavimas, pilnai sutvarkyta infrastruktūra ir į vakarų pusę orientuotos terasos leis mėgautis komfortu kiekvieną dieną.

Projekto privalumai

Erdvus sklypas ir privatumas

  • 7–8 arų sklypai – daugiau erdvės jūsų poilsiui ir laisvalaikiui.
  • Uždara kaimynystė – tik 10 namų, užtikrinančių ramybę ir saugumą.
  • Pilnai sutvarkyta aplinka – apželdintos žaliosios zonos, trinkelėmis grįsti takai, lauko apšvietimas.
  • Patogus privažiavimas – asfaltuotas kelias, lengvas susisiekimas su miesto centru.
  • Vakarų pusėje orientuotos terasos – mėgaukitės saulėlydžiais savo kieme.

Erdvus sklypas ir privatumas

  • 7–8 arų sklypai – daugiau erdvės jūsų poilsiui ir laisvalaikiui.
  • Uždara kaimynystė – tik 10 namų, užtikrinančių ramybę ir saugumą.
  • Pilnai sutvarkyta aplinka – apželdintos žaliosios zonos, trinkelėmis grįsti takai, lauko apšvietimas.
  • Patogus privažiavimas – asfaltuotas kelias, lengvas susisiekimas su miesto centru.
  • Vakarų pusėje orientuotos terasos – mėgaukitės saulėlydžiais savo kieme.

Modernus ir funkcionalus namo vidus

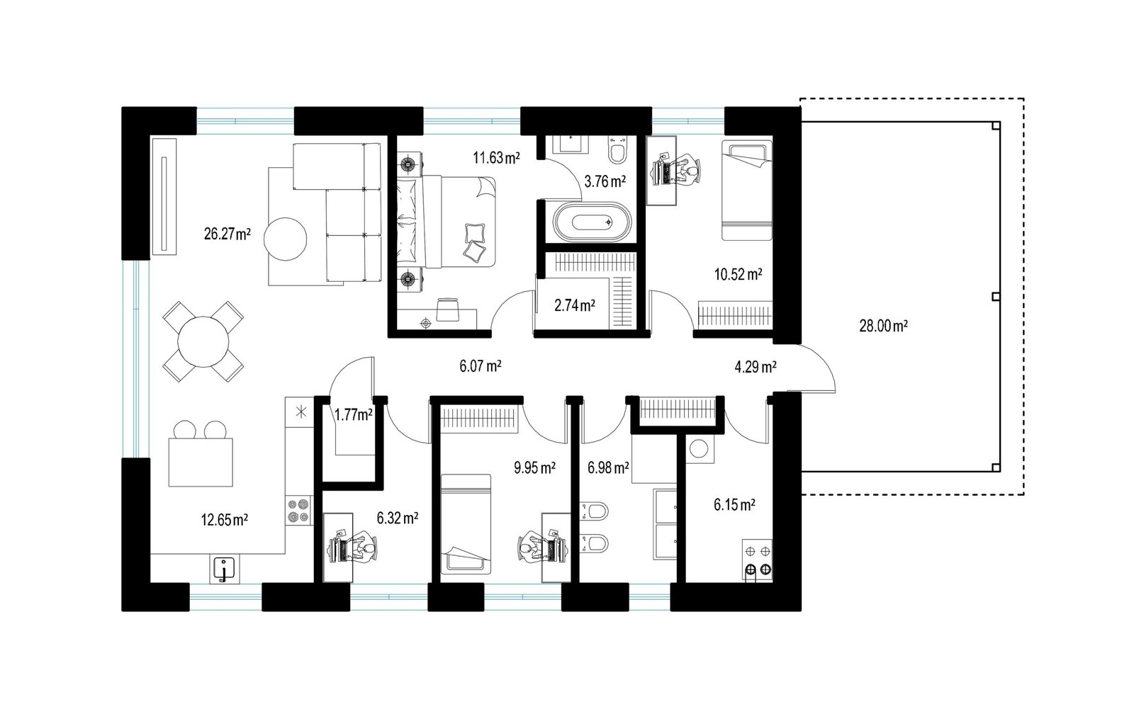
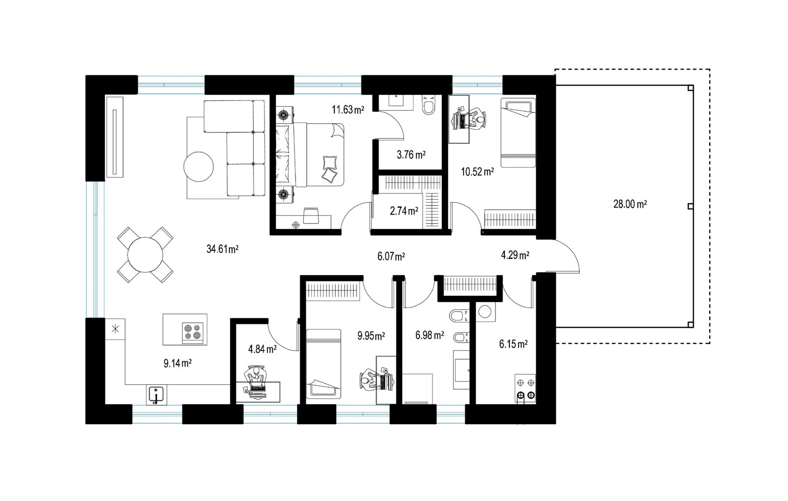
  • 110 m² vieno aukšto namas – optimalus erdvės ir funkcionalumo balansas.
  • Erdvi svetainė su aukštomis lubomis – natūrali šviesa ir erdvės pojūtis.
  • Privatus pagrindinis miegamasis – su atskira vonia ir drabužine.
  • Vitrininiai langai iki grindų – daugiau natūralios šviesos ir ryšys su kiemu.
  • Šildomos grindys visame name – komfortas kiekviename žingsnyje.

Aukščiausios kokybės statybos sprendimai

  • A++ energinė klasė – mažos išlaikymo sąnaudos ir efektyvus šildymas.
  • Mūrinės sienos ir storas apšiltinimas – šiluma žiemą, vėsa vasarą.
  • Kokybiškas klinkerio fasadas – ilgaamžis ir estetiškas sprendimas.
  • Samsung oras-vanduo šildymo sistema – patikimas, ekonomiškas ir aplinkai draugiškas šildymas.
  • Aukštos kokybės VEKA profilio langai – energijos taupymas ir puiki garso izoliacija.

Aukščiausios kokybės statybos sprendimai

  • A++ energinė klasė – mažos išlaikymo sąnaudos ir efektyvus šildymas.
  • Mūrinės sienos ir storas apšiltinimas – šiluma žiemą, vėsa vasarą.
  • Kokybiškas klinkerio fasadas – ilgaamžis ir estetiškas sprendimas.
  • Samsung oras-vanduo šildymo sistema – patikimas, ekonomiškas ir aplinkai draugiškas šildymas.
  • Aukštos kokybės VEKA profilio langai – energijos taupymas ir puiki garso izoliacija.

Tai daugiau nei namai, tai išskirtinė
gyvenimo kokybė kasdien.

Lokacija

Aleksotas – vienas sparčiausiai besivystančių Kauno mikrorajonų, kuriame dera miesto patogumai ir gamtos ramybė. Gyvenu Aleksote projektas įsikūręs strategiškai patogioje vietoje:

  • Artimiausias vaikų darželis: ~500 metrų​
  • Artimiausia mokykla: ~1 kilometras​
  • Artimiausia pirminės sveikatos priežiūros įstaiga: ~1 kilometras
  • Kauno miesto centras: ~3 kilometrai​

Išplanavimas:

Variantas: (A)

Variantas: (B)

Susisiekime: